La philosophie Proconcept
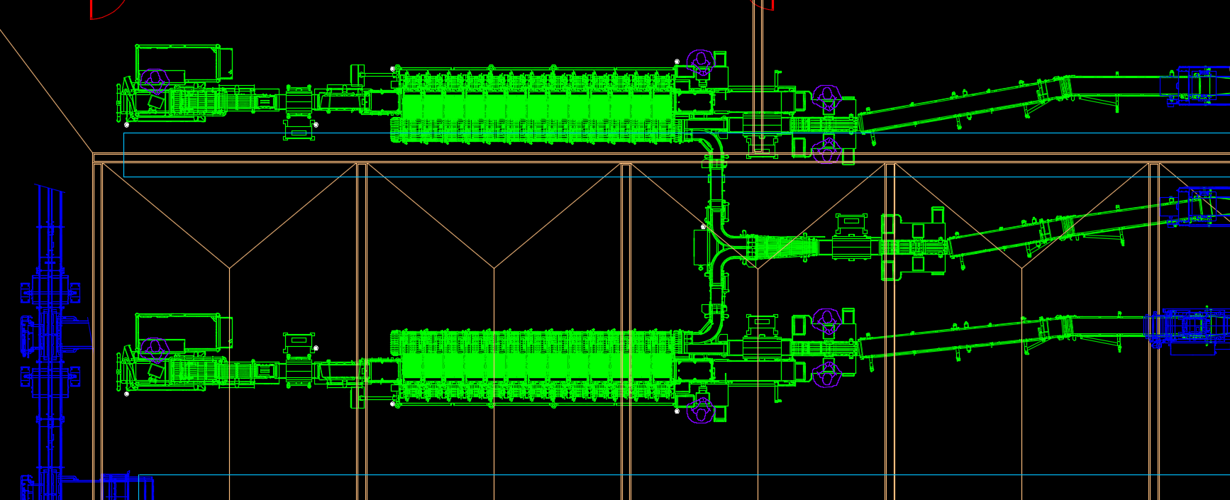
PROCONCEPT est une société spécialisée dans la conception et la réalisation d’équipements pour l’industrie agro-alimentaire.
Nos réalisations s’appuient sur une connaissance approfondie des process de l’agro-alimentaire et sont toujours conçues au plus près des besoins et des contraintes spécifiques de chaque industriel.
ans d'expérience
équipements en production
premier trancheur à saumon
Toujours à votre écoute
La qualité des relations avec nos clients et la fiabilité de nos matériels nous permettent d’établir de vrais partenariats pour accompagner les entreprises dans leur développement sur le long terme
Jean-Louis Sourbes
Gérant
Nos événements
passés et à venir
Nouveauté : nouvelle machine
Qu'est-ce que le Lorem Ipsum? Le Lorem Ipsum est simplement du faux texte employé dans la composition et la mise en page avant impression. Le Lorem Ipsum est le faux texte standard de l'imprimerie depuis les années 1500, quand un imprimeur anonyme assembla ensemble...
Stand Proconcept Seafood 2025
Merci pour votre visite sur notre stand et pour l'intérêt que vous avez porté à nos équipements.
Seafood Barcelone 2024
The "Seafood Expo" show is establishing itself as the annual global meeting place for professionals in the seafood sector. This event brings together more than 1,500 exhibitors and more than 26,000 visitors. Come and meet us on Stand 3JJ200!






